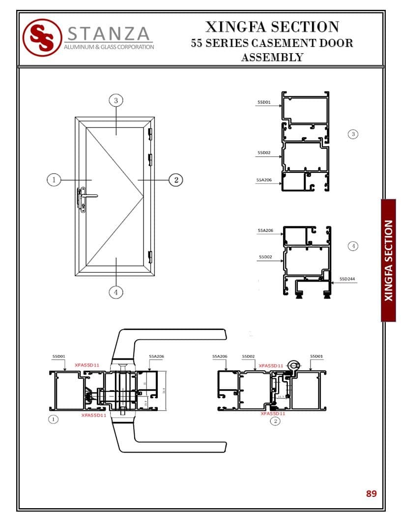
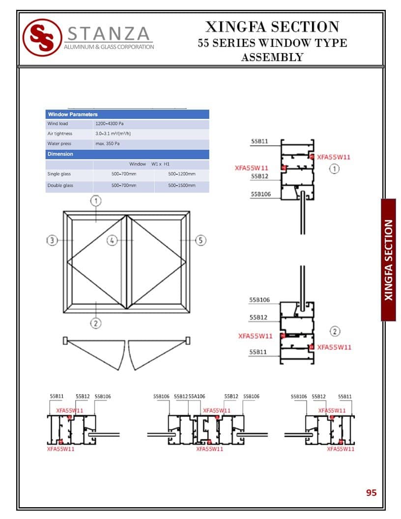
CASEMENT / AWNING WINDOW

A type of window that is designed to provide a high level of ventilation, natural light, and energy efficiency. It features a single-hinged or multi-hinged sash that opens outward, typically with a crank handle.

Key Features:

  • Made of durable aluminum materials that are resistant to corrosion and weathering
  • Offers a high level of ventilation and natural light
  • Can be designed with various sash configurations, including fixed, operable, and combination options
  • Provides excellent weather-tightness and wind resistance
  • Available in a range of sizes and shapes to accommodate different architectural styles and design requirements

Benefits:

  • Provides excellent ventilation and natural light
  • Offers energy efficiency through reduced air leakage and improved insulation
  • Durable and low maintenance requirements reduce costs and downtime
  • Available in a range of colors and finishes to match building design and architectural intent

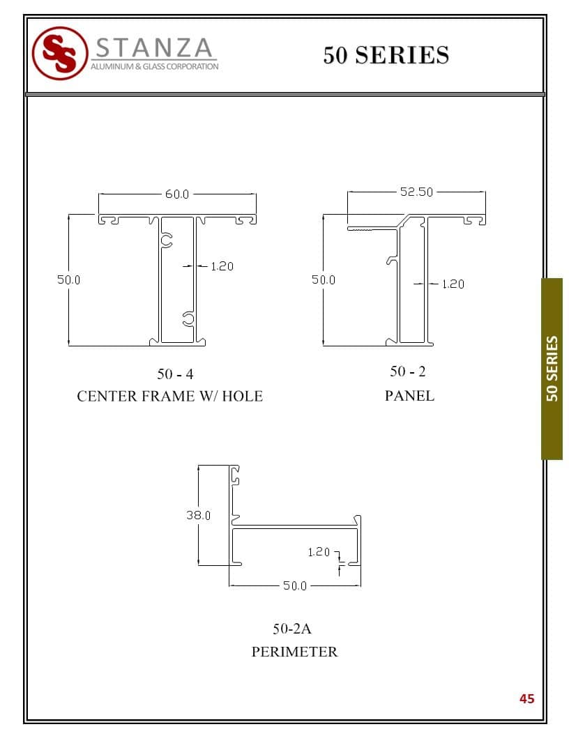
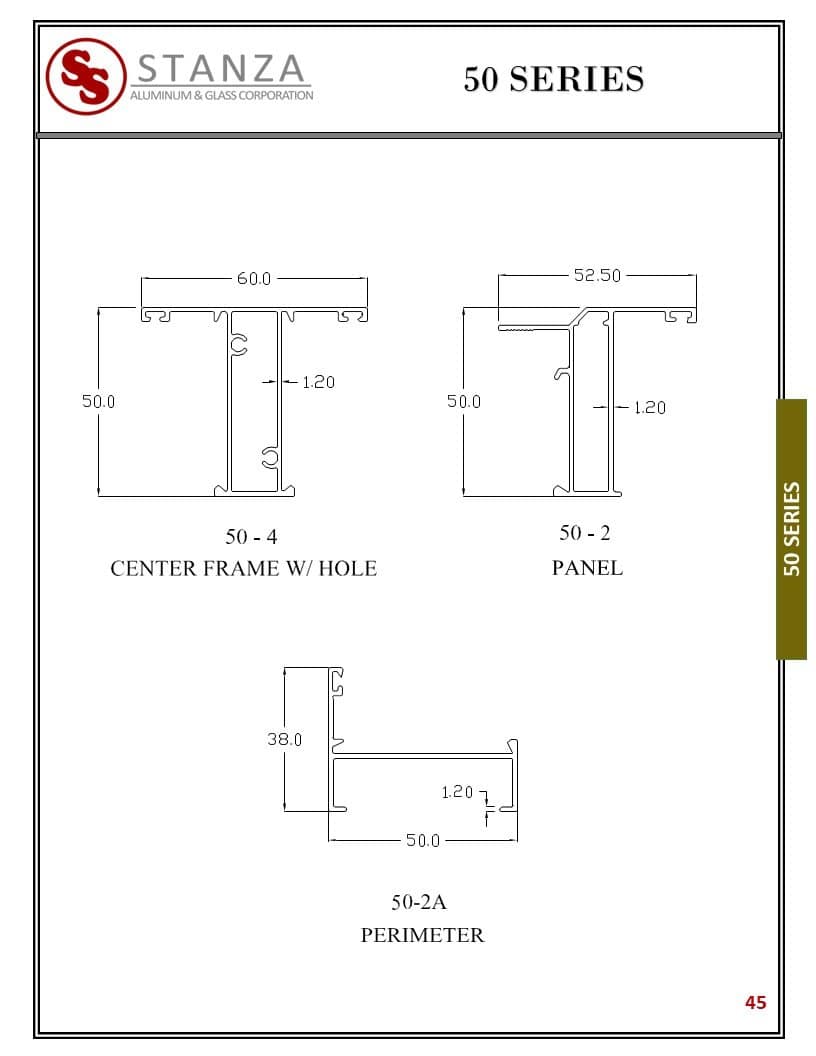
Aluminum Profiles for Casement / Awning Window